PREDAJ VEĽKOMETRÁŽNY 3,5 IZBOVÝ BYT ZAHRADNICKA, PARKOVANIE VO DVORE
Zahradnicka, Bratislava-Ružinov, okres Bratislava II, Bratislavský kraj [SK]
300 000 €
92.00 m² (3 260.87 €/m²)
Aktualizácia: 9.4.2026 17:45 Základné informácie
- ID: BYT1278020
- Typ: Predaj
- Druh: 3.5 izbový byt
- Cena: 300 000 €
- Cena/m²: 3 260.87 €/m²
- Plocha: 92.00 m²
- Zastavané: neuvedené
- Pozemok: neuvedené
- Stav: Čiastočná rekonštrukcia
Lokalita
- Ulica: Zahradnicka
- Obec /mesto/: Bratislava-Ružinov
- Okres: okres Bratislava II
- Kraj: Bratislavský kraj
- Štát: Slovensko
Text inzerátu
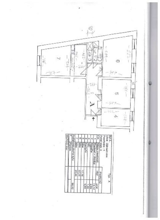
Ponúkame Vám na predaj pekný veľký investičný TEHLOVÝ 3,5 izbový byt , o veľkosti 92 m2 vo vyhľadávanej lokalite, širšie centrum, na Záhradníckej ulici. Byt sa dá prerobiť na plnohodnotný 4 a pol izbový byt. Byt sa nachádza na 4 poschodí v 5 podlažnom bytovom dome s výťahom. Strecha bytového domu je komplet zrekonštruovaná. Byt má výborné dispozičné riešenie, izby sú nepriechodné. Byt prešiel čiastočnou rekonštrukciou, plastové okná, nová vaňa, toaleta, na podlahe v izbách sú pôvodné dubové parkety, na radiátoroch sú merače a regulátory teploty. Kúrenie a ohrev vody je z domovej kotolne. K bytovému domu prislúcha dvor s možnosťou bezproblémového parkovania. Súčasťou bytu je aj pivnica o veľkosti 4m2. Byt sa nachádza vo výbornej občianskej vybavenosti, centrum Centrál, centrálne trhovisko, školy, škôlky, obchody a výborná dostupnosť do mesta aj na diaľnicu. Byt je kúpou voľný, možný aj HU.
Cena predaja : 300 00 EUR, INF: 0905 302230
Mapa lokality s ponúkanou nehnuteľnosťou (vyznačená poloha môže byť orientačná)
Kontakt na inzerenta Všetky naše inzeráty
TRIANGEL Real s.r.o.
Realitná kancelária
Zahradnicka 95, 82902 Bratislava
0905302230
denka@triangelreal.com
Realitná kancelária
Zahradnicka 95, 82902 Bratislava
0905302230
denka@triangelreal.com
(všetky top reality) TOP reality
Reality podľa typu
-
6564 Na predaj
-
3404 Na prenájom
Reality podľa kategórie
-
4800 Byty
-
2433 Domy
-
1807 Pozemky
-
1197 Nebytové priestory
-
606 Komerčné objekty



