BYT Č.404, RUDLOVSKÁ RESIDENCE
Rudlovská cesta, Banská Bystrica, okres Banská Bystrica, Banskobystrický kraj [SK]
neuvedené
55.45 m² ( )
Aktualizácia: 20.4.2022 14:40 Základné informácie
- ID: BYT1152768
- Typ: Predaj
- Druh: 2 izbový byt
- Cena: neuvedené
- Cena/m²:
- Plocha: 55.45 m²
- Zastavané: neuvedené
- Pozemok: neuvedené
- Stav: neuvedené
Lokalita
- Ulica: Rudlovská cesta
- Obec /mesto/: Banská Bystrica
- Okres: okres Banská Bystrica
- Kraj: Banskobystrický kraj
- Štát: Slovensko
Text inzerátu
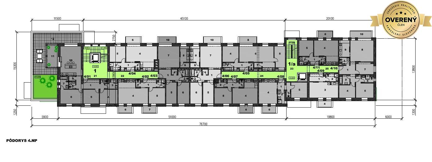
2-izbový byt na 4. poschodí ktorý pozostáva zo vstupnej chodby, kuchyne, dvoch izieb, kúpeľne, WC a balkóna.
Byt bude dokončený v štandarde vrátane zariaďovacích predmetov v kúpeľni a vo WC. Dvere budú drevené s drevenými obložkovými zárubňami, podlahy budú vyhotovené ako plávajúce laminátové a z keramickej dlažby.
Mapa lokality s ponúkanou nehnuteľnosťou (vyznačená poloha môže byť orientačná)
Kontakt na inzerenta Všetky naše inzeráty
MAXISS, spol.s.r.o.
Realitná kancelária
Jazmínova 1, 97404 Banská Bystrica
0905613160
maxiss@maxiss.sk
Realitná kancelária
Jazmínova 1, 97404 Banská Bystrica
0905613160
maxiss@maxiss.sk
(všetky top reality) TOP reality
Reality podľa typu
-
6553 Na predaj
-
3394 Na prenájom
Reality podľa kategórie
-
4797 Byty
-
2431 Domy
-
1796 Pozemky
-
1195 Nebytové priestory
-
603 Komerčné objekty



