BV REAL NA PREDAJ APARTMÁNY OKRES BANSKÁ ŠTIAVNICA FM2043
-, Počúvadlo, okres Banská Štiavnica, Banskobystrický kraj [SK]
166 000 €
70.00 m² (2 371.43 €/m²)
Aktualizácia: 21.10.2025 04:25 Základné informácie
- ID: BYT1271484
- Typ: Predaj
- Druh: Iný dom
- Cena: 166 000 €
- Cena/m²: 2 371.43 €/m²
- Plocha: 70.00 m²
- Zastavané: neuvedené
- Pozemok: neuvedené
- Stav: neuvedené
Lokalita
- Ulica: -
- Obec /mesto/: Počúvadlo
- Okres: okres Banská Štiavnica
- Kraj: Banskobystrický kraj
- Štát: Slovensko
Text inzerátu
Realitný maklér Fazika Miroslav a BV REAL realitná kancelária ponúka na predaj apartmány v apartmánových domoch v rekreačnej, turistickej a chatovej oblasti Počúvadlo v okrese Banská Štiavnica.
Apartmánové domy sú situované v blízkosti Počúvadlianskeho jazera vo vyhľadávanej a tichej lokalite, v okolí sa nachádzajú rekreačné chaty a apartmánové domy, reštaurácia, pekná okolitá príroda Štiavnických vrchov.
Jazero patrí medzi najnavštevovanejšie lokality blízkeho okolia, rozprestiera sa na ploche 12 ha a je oblúbeným miestom letných ale aj zimným rekreačným strediskom chatárov, turistov, detských táborov a škôl v prírode.
Bohatý sprievodný program a kultúrne vyžitie tu nájdete počas leta. Okolie ponúka ideálne príležitosti na rôzne športové a turistické aktivity.
Len pár km sa nachádza historické slobodné kráľovské banské mesto Banská Štiavnica. Od roku 1993 bolo ako historické mesto Banská Štiavnica a technické pamiatky jeho okolia zapísané do zoznamu Svetového kultúrneho a prírodného dedičstva UNESCO.
Samostatné apartmány sa ponúkajú na výber 3 fázy predaja holodom, štandard a na kľúč, podľa požiadavky kupcu.
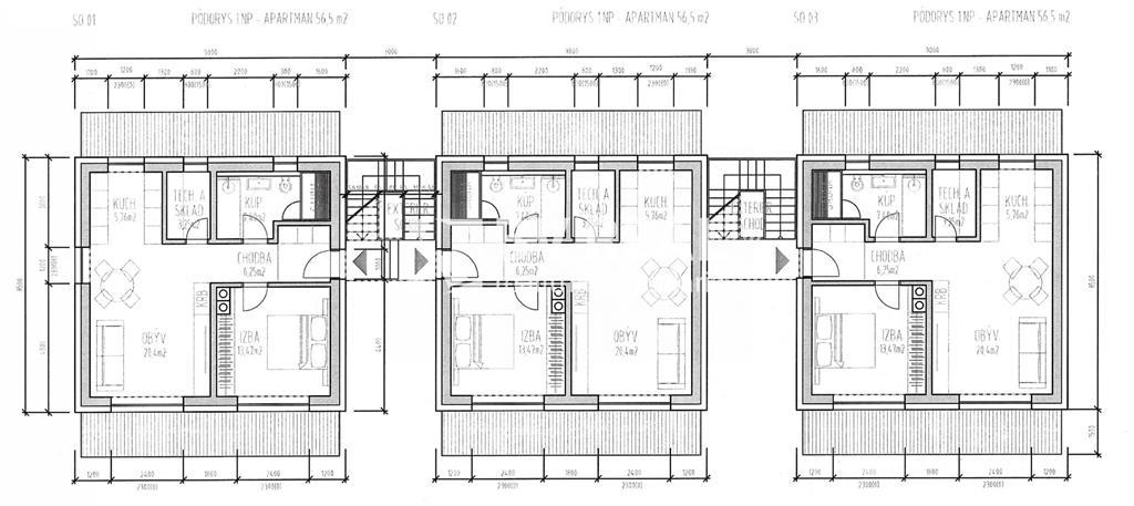
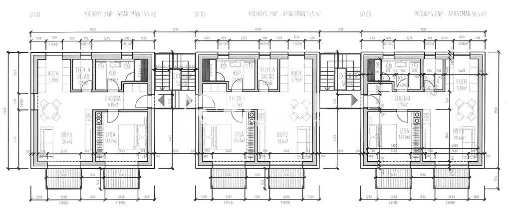
Na celom pozemku sú naplánované postavenie 3 apartmánových domov (prvý dom sa už stavia) a v každom dome budú 2 samostatné apartmány so samostatným vchodom aj s parkovacím miestom.
V cene predaja je aj podiel na vlastnej prístupovej komunikácii a podiel na pozemku, ktorý patrí k apartmánovým domom.
Každý apartmán pozostáva z priestrannej obyvačky s krbom, kuchyne, kúpeľne, spálne, chodby a skladovej technickej miestnosti, spodné apartmány majú aj terasu, vrchné apartmány majú aj balkón, podľa priložených vizualizácii, prípadne je možnosť zväčšiť kuchyňu zrušením skladovej technickej miestnosti.
Možnosť výberu viacej typov kuchýň a obkladov (podľa priložených návrhov).
V cene štádium holodom je predpríprava elektrika, voda, kanalizácia, podlahové kúrenie, vyliate podlahy, vápeno cementové stierky, príprava na krb na tuhé palivo, príprava na svietidlá, vonkajšie bezpečnostné dvere.
V cene štandard: dvere, dlažby, sprcha, umývadlo, batérie, záchod, obklady sprcha, obklady zachod, obklad kuchyňa, okenné závesi, kuchynska linka, elektrický sporák, umývačka riadu, chladnicka, odsavačka, dres, pec, kozub, vstavaná skriňa, fasádne omietky, podlahy obytných miestností, ústredne vykurovanie, elektroinštalácia, rozvody vody, kanalizácia do žumpy, zdroj teplej vody, zdroj vykurovania.
Cena s možnosťou odovzdania na kľúč aj so zariadením, svietidlami a pod. bude stanovená podľa dohody s majiteľom a podľa požiadavky kupujúceho.
V prvom apartmánovom dome je naplánované v suteréne welnes centrum aj so saunami (ako vidieť na priložených fotkách), ktoré bude prevázkovať majiteľ a budú k dispozícii pre majiteľov apartmánov, hostí, rekreantov a pod., ale aj pre okolité chaty a apartmánové domy.
Po dohode s majiteľom sú na výber aj 3 varianty vonkajších fasád a to kombinácia čierny trapez aj so zábradliami terasy, alebo kombinácia svetlý trapez s béžovými oknami alebo kombinácia drevo kompozit (ukážku týchto variant nájdete na priložených obrázkoch).
Nákresy pôdorysov obidvoch podlaží nájdete na obrázkoch.
Od tejto lokality je len 25 km vzdialené termálne kúpele Sklenné Teplice, 24 km termálne kúpalisko Vyhne, 19 km známe lyžiarske stredisko,.
Odporúčanie makléra: pekná lokalita, kto má rád romantiku, oddych, relax v srdci prírody, vrelo odpočam.
Cena apartmánu je podľa výberu fázy dokončenia a je konečná, neplatíte nič navyše.
Cena do fázy holodom 166000 €.
Cena do fázy štandard 186666 €.
Cena do fázy na kľúč podľa dohody s majiteľom.
V cene nehnuteľnosti je okrem sprostredkovania, predaja a kúpy:
- uhradenie správneho poplatku za návrh na vklad kúpnej zmluvy do katastra nehnuteľností
- uhradenie poplatku za osvedčenie podpisov na kúpnej zmluve
- poradenstvo / vybavenie financovania na mieru (Spolupracujeme so všetkými bankami)
- poistné poradenstvo / vybavenie poistenia
Možnosť platby v hotovosti aj na úver. Úver vám bezplatne vybaví náš hypotekárny a úverový špecialista.
Termín obhliadky si môžete dohodnúť na tel.č. 0918 709 037, alebo mailom: mfazika@bvreal.sk alebo osobne v kancelárii BV REAL.
Web makléra: www.fazikamiroslav.sk
Číslo zákazky FM2043
Mapa lokality s ponúkanou nehnuteľnosťou (vyznačená poloha môže byť orientačná)
Kontakt na inzerenta Všetky naše inzeráty
BV REAL PD, s.r.o
Realitná kancelária
Námestie slobody 28, 97101 Prievidza
0918472184
0905834198
info@bvreal.sk
Realitná kancelária
Námestie slobody 28, 97101 Prievidza
0918472184
0905834198
info@bvreal.sk
(všetky top reality) TOP reality
Reality podľa typu
-
6565 Na predaj
-
3400 Na prenájom
Reality podľa kategórie
-
4799 Byty
-
2431 Domy
-
1807 Pozemky
-
1197 Nebytové priestory
-
606 Komerčné objekty






















