3-IZBOVÝ BYT S VLASTNOU ZÁHRADOU A TERASOU BA III., PRI VINOHRADOCH
Pri vinohradoch, Bratislava-Rača, okres Bratislava III, Bratislavský kraj [SK]
175 000 €
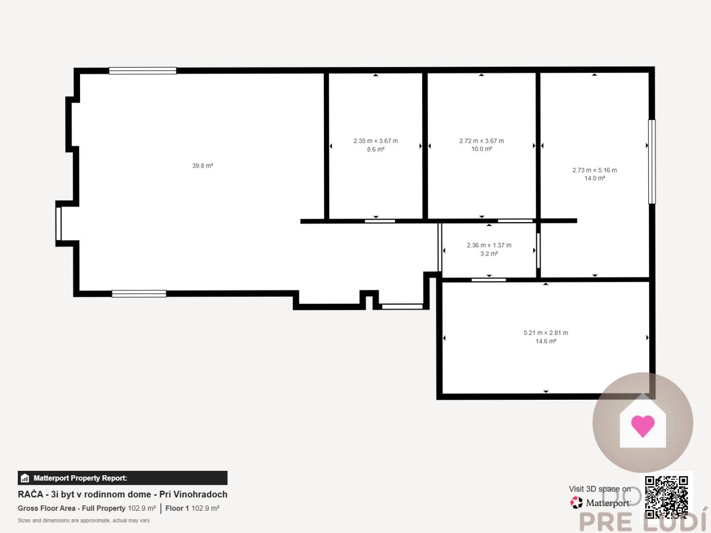
99.00 m² (1 767.68 €/m²)
Aktualizácia: 30.4.2026 09:31 Základné informácie
- ID: BYT1286923
- Typ: Predaj
- Druh: 3 izbový byt
- Cena: 175 000 €
- Cena/m²: 1 767.68 €/m²
- Plocha: 99.00 m²
- Zastavané: neuvedené
- Pozemok: neuvedené
- Stav: Projekt vo výstavbe
Lokalita
- Ulica: Pri vinohradoch
- Obec /mesto/: Bratislava-Rača
- Okres: okres Bratislava III
- Kraj: Bratislavský kraj
- Štát: Slovensko
Text inzerátu
Realitná kancelária Domy pre ľudí ponúka na predaj priestranný 3 - izbový byt s veľkým šatníkom v obľúbenej časti Bratislavy – Rača, na ulici Pri vinohradoch. Nehnuteľnosť sa nachádza na prízemí menšieho objektu s jedným nadzemným podlažím, čo jej dodáva príjemný pocit bývania podobný rodinnému domu.
Byt má úžitkovú plochu 99 m² a veľkým benefitom je vlastná záhrada o výmere 56 m² spolu s priestrannou terasou 30 m², ktorá je prístupná priamo z obývacej izby.
Nehnuteľnosť je aktuálne v stave holobytu, pričom už prebehli základné úpravy vrátane riešenia odpadov. Nový majiteľ tak získava ideálnu príležitosť dokončiť si bývanie presne podľa vlastných predstáv. K bytu je k dispozícii aj projektová dokumentácia, ponuky práce na dokončenie. Vykurovanie je plánované formou vlastného kotla (plynového alebo elektrického) s ohrevom vody.
K bytu prislúcha podiel na povale a vinnej pivnici, ktorá dodáva nehnuteľnosti jedinečný charakter.
Mesačné náklady na bývanie sa pohybujú približne na úrovni 200 €.
Byt je evidovaný na liste vlastníctva ako časť rodinného domu, možnosť financovania len bez hypotekárneho úveru.
Lokalita ponúka kompletnú občiansku vybavenosť – v blízkosti sa nachádzajú obchody, školy, škôlky, zdravotné strediská, služby aj množstvo možností na šport a oddych. Výhodou je aj dobrá dostupnosť do centra mesta a blízkosť prírody Malých Karpát.
Táto nehnuteľnosť je ideálnou voľbou pre tých, ktorí hľadajú bývanie s vlastnou záhradou, dostatkom priestoru a možnosťou dotvoriť si interiér podľa vlastného vkusu.
NAŠE SLUŽBY
Táto nehnuteľnosť je ponúkaná prostredníctvom spoločnosti Domy pre ľudí - v provízii sprostredkovateľa sú zahrnuté poplatky spojené s prevodom nehnuteľnosti - základný poplatok za návrh na vklad do katastra nehnuteľnosti vo výške 100€, poplatky za overovanie podpisov predávajúcich na zmluvách, vypracovanie zmlúv a autorizácia zmlúv advokátom, poistenie pre prípad spôsobenej škody do výšky 1,5mil€, hypotekárne poradenstvo a kompletný realitný servis.
Mapa lokality s ponúkanou nehnuteľnosťou (vyznačená poloha môže byť orientačná)
Kontakt na inzerenta Všetky naše inzeráty
Domy pre ľudí s.r.o.
Realitná kancelária
Zahradnícka 46, 82108 Bratislava
0903374550
lubos.michalik@domypreludi.sk
Realitná kancelária
Zahradnícka 46, 82108 Bratislava
0903374550
lubos.michalik@domypreludi.sk
(všetky top reality) TOP reality
Reality podľa typu
-
6567 Na predaj
-
3386 Na prenájom
Reality podľa kategórie
-
4793 Byty
-
2436 Domy
-
1799 Pozemky
-
1197 Nebytové priestory
-
603 Komerčné objekty






















