PROJEKT ASTRA 9
Žilina, okres Žilina, Žilinský kraj [SK]
57 250 €
84.00 m² (681.55 €/m²)
Aktualizácia: 13.4.2025 21:05 Základné informácie
- ID: BYT1256090
- Typ: Predaj
- Druh: Rodinný dom
- Cena: 57 250 €
- Cena/m²: 681.55 €/m²
- Plocha: 84.00 m²
- Zastavané: neuvedené
- Pozemok: neuvedené
- Stav: neuvedené
Lokalita
- Ulica: neuvedené
- Obec /mesto/: Žilina
- Okres: okres Žilina
- Kraj: Žilinský kraj
- Štát: Slovensko
Text inzerátu
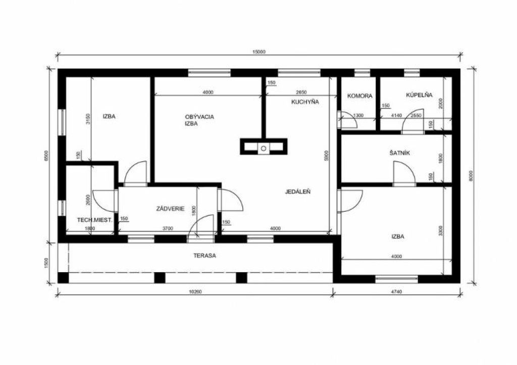
Ponúkame Vám na predaj projekt bungalovu rodinného domu. Dispozične je riešený ako 4+KK, teda obývacia izba je prepojená s kuchynským kútom a tvorí priestrannú otvorenú dennú časť domu. Ďalšie tri izby sú samostatné. Spacie izby sú dennou časťou rozdelené na dve menšie nočné časti. Úžitková plocha je 84 m2. Viac projektov nájdete na real-corp.sk.
Mapa lokality s ponúkanou nehnuteľnosťou (vyznačená poloha môže byť orientačná)
(všetky top reality) TOP reality
Reality podľa typu
-
6565 Na predaj
-
3404 Na prenájom
Reality podľa kategórie
-
4801 Byty
-
2434 Domy
-
1806 Pozemky
-
1197 Nebytové priestory
-
606 Komerčné objekty







