PRENÁJOM PRIESTOROV BLÍZKO CENTRA BB - 390 M2
Na Troskách, Banská Bystrica, okres Banská Bystrica, Banskobystrický kraj [SK]
3 519 € /mes.
391.00 m² (9.00/m²)
Aktualizácia: 22.4.2026 13:27 Základné informácie
- ID: BYT1244974
- Typ: Prenájom
- Druh: Administratívne priestory
- Cena: 3 519 € /mes.
- Cena/m²: 9.00/m²
- Plocha: 391.00 m²
- Zastavané: neuvedené
- Pozemok: neuvedené
- Stav: neuvedené
Lokalita
- Ulica: Na Troskách
- Obec /mesto/: Banská Bystrica
- Okres: okres Banská Bystrica
- Kraj: Banskobystrický kraj
- Štát: Slovensko
Text inzerátu
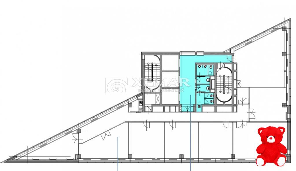
XEMAR (monika.bruchanikova@xemar.sk, alebo 0944 107 803) ponúka na prenájom priestory vhodné na kancelárie, alebo ako obchodné priestory v širšom centre BB. Priestory sa nachádzajú v modernej budove, kde je zabezpečené parkovanie, 24 hodinová strážna služba, moderné IT systéme - internet, ethernet, ozvučenie, požiarny rozhlas, bankové služby, 3x výťah a mnoho iného. Výmera týchto priestorov je 390,95 m2, jedná sa o celé poschodie, ktoré sa skladá z viacerých miestností + vlastná kuchynka, chodba a nadštandardné soc. zariadenie.
Priestory sú voľné ihneď.
V prípade záujmu o obhliadku ma neváhajte kontaktovať na tel. čísle 0944 107 803.
Cena nájmu je 9€/m2 (bez DPH a bez energií).
Mapa lokality s ponúkanou nehnuteľnosťou (vyznačená poloha môže byť orientačná)
Kontakt na inzerenta Všetky naše inzeráty
XEMAR realitná spoločnosť s.r.o.
Realitná kancelária
M. Rázusa 22, 97401 Banská Bystrica
0915870350
monika.hlivova@xemar.sk
Realitná kancelária
M. Rázusa 22, 97401 Banská Bystrica
0915870350
monika.hlivova@xemar.sk
(všetky top reality) TOP reality
Reality podľa typu
-
6564 Na predaj
-
3406 Na prenájom
Reality podľa kategórie
-
4803 Byty
-
2434 Domy
-
1807 Pozemky
-
1196 Nebytové priestory
-
605 Komerčné objekty
















