PRENÁJOM ADMINISTRATÍVNO-SKLADOVÝ AREÁL BANSKÁ BYSTRICA
Senická cesta, Banská Bystrica, okres Banská Bystrica, Banskobystrický kraj [SK]
5 500 € /mes.
plocha nie je uvedená
Aktualizácia: 13.5.2026 17:57 Základné informácie
- ID: BYT1278306
- Typ: Prenájom
- Druh: Priemyselná zóna
- Cena: 5 500 € /mes.
- Cena/m²:
- Plocha: neuvedené
- Zastavané: neuvedené
- Pozemok: neuvedené
- Stav: neuvedené
Lokalita
- Ulica: Senická cesta
- Obec /mesto/: Banská Bystrica
- Okres: okres Banská Bystrica
- Kraj: Banskobystrický kraj
- Štát: Slovensko
Text inzerátu
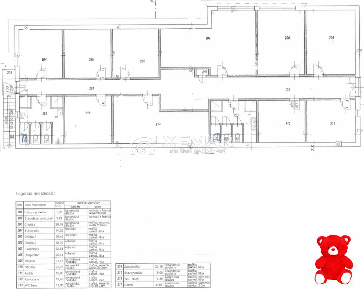
XEMAR (monika.bruchanikova@xemar.sk, alebo 0944 107 803) ponúka na prenájom Administratívno-skladový areál v Banskej Bystrici, časť Senica. Areál sa nachádza v dobrej dopravnej dostupnosti, v blízkosti hlavnej komunikácie Banská Bystrica – Brezno, čo z neho robí ideálne miesto pre administratívne, servisné, logistické či skladové využitie.Pozemok o rozlohe 4 380 m2 je rovinatý a kompletne napojený na všetky inžinierske siete (elektrina, voda, kanalizácia).Spevnené plochy poskytujú dostatočný priestor na parkovanie aj manipuláciu s nákladnými vozidlami.Popis objektov v rámci areálu1. Administratívna budova (hlavný objekt)1. NP – 292 m2: skladové priestory, dielne, garáže a kotolňa2. NP – 213 m2: 9 kancelárskych miestností, zasadacia miestnosť, ženské a mužské sociálne zariadenia (toalety a sprchy)Budova je murovaná so sedlovou strechou, vo veľmi dobrom technickom stave.Zdroj tepla zabezpečuje kotol na pevné palivo alebo alternatívne peletková pec, čo prináša flexibilitu a úsporu prevádzkových nákladov.2. Administratívna budova č. 2Zastavaná plocha: 57 m2Obsahuje 2 kancelárie a sociálne zázemie (sprchy a WC). Objekt je vhodný ako doplnkové, administratívne alebo prevádzkové zázemie.3. – 5. Železné prístreškyCelková plocha: 493 m2Prístrešok č. 1 – 135 m2Prístrešok č. 2 – 100 m2Prístrešok č. 3 – 258 m2Všetky prístrešky sú rozmerovo prispôsobené pre nákladné vozidlá, vhodné na parkovanie, skladovanie alebo montážne práce.6. Plechová garážPlocha: 45 m2, vhodná na parkovanie alebo sklad náradia a techniky.Základná charakteristika a výhody areálu- strategická poloha v rámci Banskej Bystrice, s rýchlym napojením na hlavný cestný ťah- kompletné inžinierske siete a dostatok parkovacích a manipulačných plôch- viacúčelové využitie: administratíva, servis, sklad, výroba- murované objekty vo veľmi dobrom technickom stave- možnosť okamžitého využívania bez nutnosti väčších investíciíAreál ponúka variabilitu využitia – od sídla spoločnosti s administratívnym a skladovým zázemím až po servisný či menší výrobný objekt.V prípade záujmu o ďalšie informácie, technickú dokumentáciu alebo obhliadku areálu ma prosím kontaktujte na tel. číslo 0944 107 803.CENA nájmu je 5.500€/mesiac bez DPH.Pri podpise zmluvy sa platí mesačný nájom, vratný depozit vo výške 2 mesačných nájmov a nevratný depozit vo výške jedného mesačného nájmu.
Mapa lokality s ponúkanou nehnuteľnosťou (vyznačená poloha môže byť orientačná)
Kontakt na inzerenta Všetky naše inzeráty
XEMAR realitná spoločnosť s.r.o.
Realitná kancelária
M. Rázusa 22, 97401 Banská Bystrica
0915870350
monika.hlivova@xemar.sk
Realitná kancelária
M. Rázusa 22, 97401 Banská Bystrica
0915870350
monika.hlivova@xemar.sk
(všetky top reality) TOP reality
Reality podľa typu
-
6671 Na predaj
-
3448 Na prenájom
Reality podľa kategórie
-
4921 Byty
-
2462 Domy
-
1813 Pozemky
-
1213 Nebytové priestory
-
600 Komerčné objekty






































