PREDAJ, RODINNÝ DOM MALÉ LEVÁRE - EXKLUZÍVNE HALO REALITY
Malé Leváre, Malé Leváre, okres Malacky, Bratislavský kraj [SK]
119 990 €
620.00 m² (193.53 €/m²)
Aktualizácia: 8.4.2026 08:25 Základné informácie
- ID: BYT1284662
- Typ: Predaj
- Druh: Rodinný dom
- Cena: 119 990 €
- Cena/m²: 193.53 €/m²
- Plocha: 620.00 m²
- Zastavané: neuvedené
- Pozemok: neuvedené
- Stav: neuvedené
Lokalita
- Ulica: Malé Leváre
- Obec /mesto/: Malé Leváre
- Okres: okres Malacky
- Kraj: Bratislavský kraj
- Štát: Slovensko
Text inzerátu
Ponúkame na predaj rodinný dom v obci Malé Leváre, okres Malacky. Dom je situovaný v radovej zástavbe a je vhodný na bývanie aj následné úpravy podľa predstáv nového majiteľa. Prešiel čiastočnou rekonštrukciou a ponúka zaujímavý základ na pohodlné vidiecke bývanie.
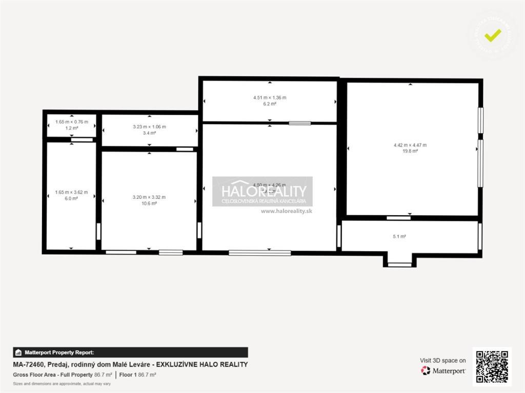
DISPOZÍCIA:
Dom má obdĺžnikový pôdorys s pristaveným podbráním. Je jednopodlažný, bez podpivničenia, zastrešený sedlovou strechou. Pozostáva z dvoch obytných miestností, pričom jedna izba je priechodná. Príslušenstvo tvorí predsieň, komora, kuchyňa, kúpeľňa a WC.
STAV NEHNUTEĽNOSTI:
Nehnuteľnosť je udržiavaná a po čiastočnej rekonštrukcii. V interiéri sú v obytných miestnostiach nové plávajúce podlahy, v kuchyni a predsieni PVC. Vykurovanie je riešené ústredným kúrením s radiátormi a plynovým kotlom, čiastočne sú doplnené aj pôvodné gamatky. Strešná krytina z pozinkovaného plechu bola vyhotovená v roku 2018. Okná boli vymenené za plastové v roku 2016.
PRÁVNY STAV:
K nehnuteľnosti bude vyhotovený nový geometrický plán a všetky stavby budú riadne zapísané, čo zabezpečí jasný a usporiadaný právny stav.
POZEMOK:
Podľa nového geometrického plánu bude mať výmeru približne 620m2. Orientačné rozmery pozemku sú cca 10x61m. Pozemok poskytuje priestor na dvor, oddychovú časť aj hospodárske využitie.
HOSPODÁRSKE STAVBY:
Vo dvore, tesne za rodinným domom, sa nachádza hospodárska budova v pôvodnom stave, ktorá si vyžaduje čiastočnú údržbu. Súčasťou predaja je aj pôvodná hospodárska stodola v zadnej časti pozemku.
INŽINIERSKE SIETE:
Dom je napojený na elektrinu, plyn a obecnú kanalizáciu. Voda je vedená zo spoločnej studne so susedným rodinným domom. Ohrev teplej vody zabezpečuje elektrický bojler.
VÝHODY:
• rodinný dom po čiastočnej rekonštrukcii
• udržiavaný stav
• nový geometrický plán a riadne zapísané stavby
• možnosť dokúpenia aj susedného rodinného domu
LOKALITA:
Obec Malé Leváre ponúka pokojné bývanie vo vidieckom prostredí s dobrou dostupnosťou do okresného mesta Malacky aj do okolitých obcí. Lokalita je vhodná pre klientov, ktorí hľadajú tiché prostredie s dostatkom priestoru.
NÁZOR MAKLÉRA:
Táto nehnuteľnosť je vhodná pre klienta, ktorý hľadá rodinný dom s vidieckym charakterom, hospodárskym zázemím a pozemkom primeranej veľkosti. Výhodou je čiastočná rekonštrukcia, udržiavaný stav a možnosť ďalších úprav podľa vlastných predstáv. Benefitom je aj možnosť kúpy susedného domu, čo otvára priestor na rozšírenie bývania, viacgeneračné bývanie alebo investičný zámer. Energetická trieda G.
Bližšie informácie Vám radi poskytneme na telefónnom čísle 0907 115 577 alebo na lukasemrich@haloreality.sk. ID ponuky: MA-72460
Cena za nehnuteľnosť je KONEČNÁ, vrátane provízie, právneho servisu zabezpečeného advokátom, poradenstva, základného správneho poplatku na katastri a hypotekárnych služieb (viac na našej webovej stránke).
U NÁS MÁTE ISTOTU: --------------------------------------------------------
- pre vašu bezpečnosť sme členom ZDRUŽENIA REALITNÝCH KANCELÁRIÍ SLOVENSKA - ZRKS
- prvotriedny servis a služby po celom Slovensku, dôvera TISÍCOK PREDÁVAJÚCICH
- na našom webe nájdete viac ako 2000 referencií spokojných klientov
- nestrannosť pri prevode Vašej nehnuteľnosti
- poradíme Vám ako najlepšie predať/kúpiť nehnuteľnosť
- profesionálne obhliadky s pravidelne preškoľovanými maklérmi
- vo vybraných lokalitách pri exkluzívnych zmluvách robíme aj videoobhliadky a nakreslíme aj pôdorys
- inzerujeme na viac ako 200 portáloch
- zmluvy garantované právnikom, dohľad nad prevodom nehnuteľnosti podľa zákona
- hypotekárne služby našich partnerov na mieru
- naše služby neustále zdokonaľujeme/zaujíma nás váš názor
-----------------------------------------------------------------------------
Nehnuteľnosť predávate jeden/dvakrát za život, nechajte to na profesionálov v realitách, ktorým DÔVERUJÚ TISÍCE PREDÁVAJÚCICH PO CELOM SLOVENSKU - u nás nájdete 2000 aktuálnych ponúk.
Mapa lokality s ponúkanou nehnuteľnosťou (vyznačená poloha môže byť orientačná)
Kontakt na inzerenta Všetky naše inzeráty
HALO reality, s.r.o.
Realitná kancelária
G.Švéniho 8, 97101 Prievidza
0915238411
reality@haloreality.sk
Realitná kancelária
G.Švéniho 8, 97101 Prievidza
0915238411
reality@haloreality.sk
(všetky top reality) TOP reality
Reality podľa typu
-
6554 Na predaj
-
3393 Na prenájom
Reality podľa kategórie
-
4797 Byty
-
2431 Domy
-
1796 Pozemky
-
1195 Nebytové priestory
-
603 Komerčné objekty






















