PONÚKAM NA PRENÁJOM V BRATISLAVE RAČI PRIESTOR O VÝMERE CCA.88 M2 BYT NA PRIZEMI
Baronka, Bratislava-Rača, okres Bratislava III, Bratislavský kraj [SK]
490 €
88.00 m² (5.57 €/m²)
Aktualizácia: 7.1.2023 16:32 Základné informácie
- ID: BYT1194942
- Typ: Prenájom
- Druh: 2 izbový byt
- Cena: 490 €
- Cena/m²: 5.57 €/m²
- Plocha: 88.00 m²
- Zastavané: neuvedené
- Pozemok: neuvedené
- Stav: Kompletná rekonštrukcia
Lokalita
- Ulica: Baronka
- Obec /mesto/: Bratislava-Rača
- Okres: okres Bratislava III
- Kraj: Bratislavský kraj
- Štát: Slovensko
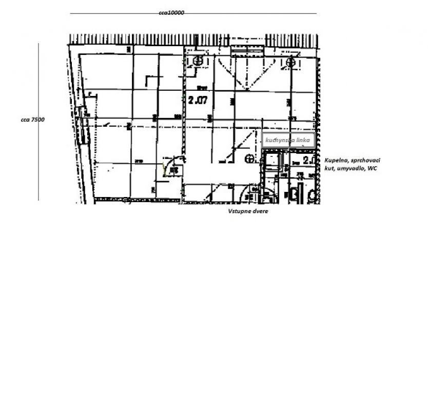
Text inzerátu
Ponúkam na prenájom v Bratislave Rači byt o výmere cca.73 m2 Byt so samostatným vchodom má 2 miestnosti kuchynský kút s kuch.linkou,vlastné WC a kúpelku, .V cene prenájmu sú už započítané všetky enegie, voda a odvoz odpadkov. V byte je pracka,l.... V objekte je zákaz chovať psov a iné zvieratá. Objekt nie je vhodný vzhľadom na technické riešenie pre malé deti. Volny od 1.1.2023. Piste mi na mail, uvedeny telefon je nefunkcny
Mapa lokality s ponúkanou nehnuteľnosťou (vyznačená poloha môže byť orientačná)
(všetky top reality) TOP reality
Reality podľa typu
-
6563 Na predaj
-
3404 Na prenájom
Reality podľa kategórie
-
4800 Byty
-
2432 Domy
-
1807 Pozemky
-
1197 Nebytové priestory
-
606 Komerčné objekty




















