OBCHODNÝ PRIESTOR PRÍSTUPNÝ Z ULICE V CENTRE MESTA, NOVOSTAVBA
Rudlovská cesta, Banská Bystrica, okres Banská Bystrica, Banskobystrický kraj [SK]
neuvedené
104.45 m² ( )
Aktualizácia: 4.6.2024 08:54 Základné informácie
- ID: BYT1223923
- Typ: Predaj
- Druh: Obchodné priestory
- Cena: neuvedené
- Cena/m²:
- Plocha: 104.45 m²
- Zastavané: neuvedené
- Pozemok: neuvedené
- Stav: neuvedené
Lokalita
- Ulica: Rudlovská cesta
- Obec /mesto/: Banská Bystrica
- Okres: okres Banská Bystrica
- Kraj: Banskobystrický kraj
- Štát: Slovensko
Text inzerátu
Hľadáte pekné, nové priestory v centre mesta s parkovacími miestami priamo pred objektom? Nech sa páči, máme také v ponuke.
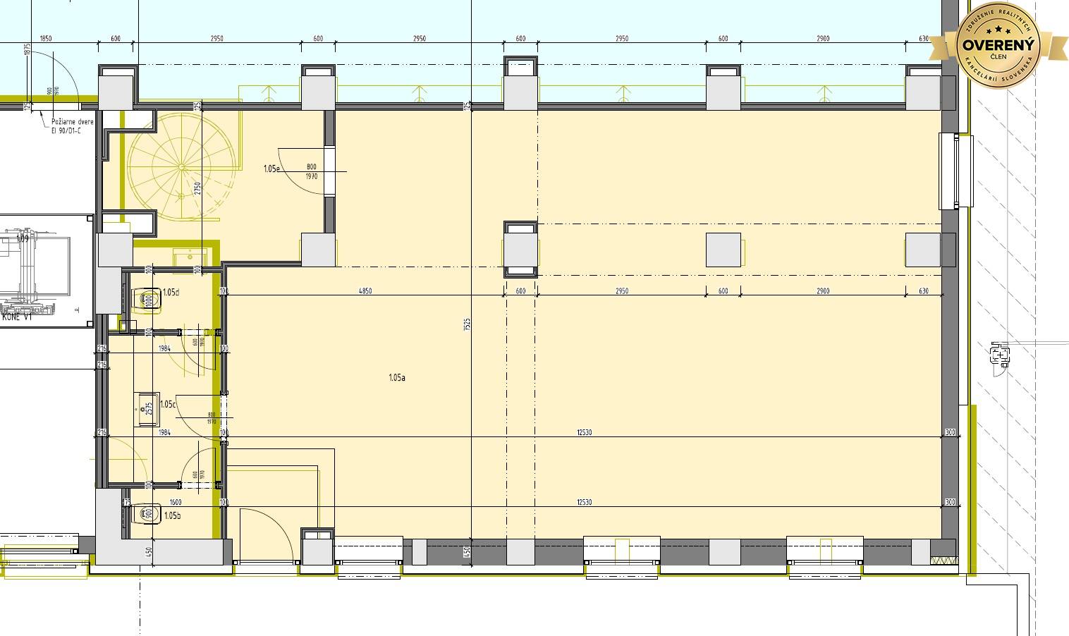
Ponúkame v novostavbe na prízemí objektu Rudlovská Residence priestor ktorý je prístupný priamo z ulice. Priestor je dokončený v štandarde a pozostáva z jednej veľkej miestnosti, sociálnych zariadení pozostávajúcich z kúpeľne a dvoch WC ako aj zázemia pre personál. Priestor bol pôvodne plánovaný pre prevádzku barbera, ale je možné ho využiť aj ako predajňu spotrebného tovaru, alebo na kancelárske účely. Výber je len na Vás.
V prípade záujmu je možné k tomuto priestoru dokúpiť ďalší priestor s ktorým je možné tento priestor prepojiť a vytvoriť tak veľký obchodný priestor o výmere 189 m2
K priestoru je možné odkúpiť aj dve parkovacie miesta priamo pred ponúkaným priestorom.
Cena je uvedená vrátane DPH na ktorú je možné si uplatniť vrátku.
Pre viac informácií alebo obhliadku ma neváhajte kontaktovať.
Mapa lokality s ponúkanou nehnuteľnosťou (vyznačená poloha môže byť orientačná)
Kontakt na inzerenta Všetky naše inzeráty
MAXISS, spol.s.r.o.
Realitná kancelária
Jazmínova 1, 97404 Banská Bystrica
0905613160
maxiss@maxiss.sk
Realitná kancelária
Jazmínova 1, 97404 Banská Bystrica
0905613160
maxiss@maxiss.sk
(všetky top reality) TOP reality
Reality podľa typu
-
6563 Na predaj
-
3407 Na prenájom
Reality podľa kategórie
-
4804 Byty
-
2434 Domy
-
1807 Pozemky
-
1195 Nebytové priestory
-
605 Komerčné objekty












