NOVOSTAVBA POD HRÁDKOM - PRIESTRANNÝ DOM- POZEMOK 600M2
Michalovce, okres Michalovce, Košický kraj [SK]
neuvedené
190.00 m² ( )
Aktualizácia: 21.7.2025 15:29 Základné informácie
- ID: BYT1262322
- Typ: Predaj
- Druh: Rodinný dom
- Cena: neuvedené
- Cena/m²:
- Plocha: 190.00 m²
- Zastavané: 150.00 m²
- Pozemok: 600.00 m²
- Stav: Kompletná rekonštrukcia
Lokalita
- Ulica: neuvedené
- Obec /mesto/: Michalovce
- Okres: okres Michalovce
- Kraj: Košický kraj
- Štát: Slovensko
Text inzerátu
REALITY HOUSE Vám ponúka:
rozostavanú NOVOSTAVBU v žiadanej lokalite - pod Hrádkom,
v novšej rodinnej zástavbe, stav HOLODOM
- s pekným výhľadom na okolie
- s praktickou dispozíciou interiéru a príjemnou veľkosťou izieb
- s dostatkom slnka vďaka veľkoformátovým oknám v prednej aj v zadnej časti domu
- na pozemku s rozlohou 600 m2
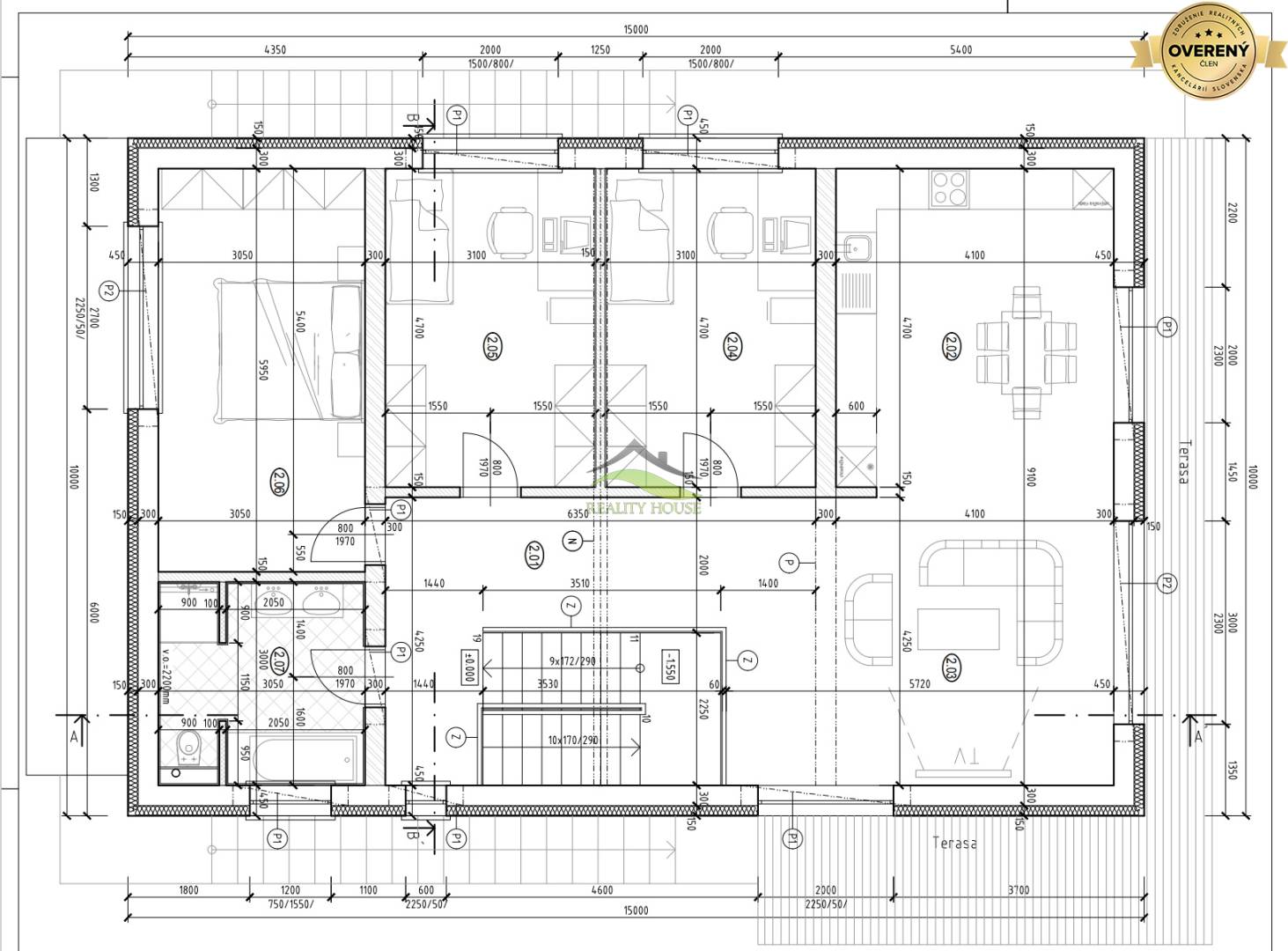
- zastavaná plocha domu na prízemí 100 m2, na poschodí 190 m2
Technické údaje:
- stavba z Ytongu 300 mm, bez izolácie
- betónová strecha s izoláciou a fóliou Fatrafol
- plastové okná 3 sklo Antracit, elektr. garážová brána
- elektrické rozvody v dome
- rozvody vody a kanalizácie
- stierky a podlahové teplovodné kúrenie
- zateplenie s novou fasádou
- prístup priamo z asfaltovej cesty
- všetky Inžinierske siete - prípojka elektriny, vody a kanalizácie
DISPOZÍCIA:
- v zadnej časti domu otvorená dispozícia kuchyne a obývacej izby
- v prednej časti domu 3 spálne, kúpelňa
- v spodnej časti domu garáž, 2 x tech. miestnosť a kúpelňa
- veľkoformátové okná v spálni a v zadnej časti domu
Lokalita pod Hrádkom je obľúbená a vyhľadávaná lokalita, s novšou zástavbou rodinných domov,
v blízkosti základnej aj materskej školy.
Cena: v realitnej kancelárii
Všetky bližšie informácie Vám radi poskytneme telefonicky alebo osobne na obhliadke.
V cene je zahrnutý kompletný realitný aj právny servis spojený s kúpou nehnuteľnosti.
Kontakt:
REALITY HOUSE
MICHALOVCE
Štefánikova 10
tel: 0915 377 087
Bc. Denisa Hanusičová
Mapa lokality s ponúkanou nehnuteľnosťou (vyznačená poloha môže byť orientačná)
Kontakt na inzerenta Všetky naše inzeráty
REALITY HOUSE, spol.s.r.o.
Realitná kancelária
Štefánikova 10, 07101 Michalovce
0940622000
office@realityhouse.sk
Realitná kancelária
Štefánikova 10, 07101 Michalovce
0940622000
office@realityhouse.sk
(všetky top reality) TOP reality
Reality podľa typu
-
6564 Na predaj
-
3402 Na prenájom
Reality podľa kategórie
-
4799 Byty
-
2432 Domy
-
1807 Pozemky
-
1197 Nebytové priestory
-
606 Komerčné objekty


















