KANCELÁRSKE 30M2-130M2 A SKLADOVÉ 144M2-1050M2 PRIESTORY RÔZNYCH VÝMER
Drevárska, Pezinok, okres Pezinok, Bratislavský kraj [SK]
169 € /mes.
30.00 m² (5.63/m²)
Aktualizácia: 21.9.2022 11:40 Základné informácie
- ID: BYT0963016
- Typ: Prenájom
- Druh: Administratívne priestory
- Cena: 169 € /mes.
- Cena/m²: 5.63/m²
- Plocha: 30.00 m²
- Zastavané: neuvedené
- Pozemok: neuvedené
- Stav: Kompletná rekonštrukcia
Lokalita
- Ulica: Drevárska
- Obec /mesto/: Pezinok
- Okres: okres Pezinok
- Kraj: Bratislavský kraj
- Štát: Slovensko
Text inzerátu
Ponúkame Vám na prenájom kancelárske a skladové priestory v uzatvorenom stráženom areáli s bezproblémovým parkovaním v širšom centre Pezinka.
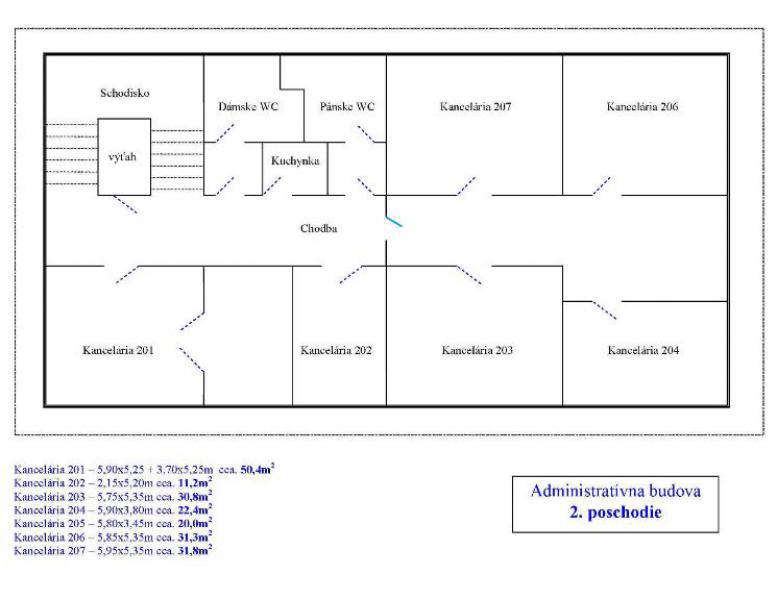
Kancelárie sa nachádzajú v šesťposchodovej administratívnej budove s výťahom, sú kompletne zrekonštruované, zariadené novým kvalitným nábytkom, s vysokorýchlostným internetom a počítačovou sieťou. V miestnostiach sú laminátové podlahy, a žalúzie, na chodbe je spoločná kuchynka a WC.
K dispozícii sú samostatné kancelárie od 30m2 do 68m2, alebo prepojené 2, 3 alebo 4 miestnosti s výmerou 136m2.
Cena: 5,50Eur/m2/mesiac vrátane energií + DPH
Ponúkame na prenájom aj skladové priestory:
- 1 056m2 - sklad s veľkou dohora vysúvacou bránou, cena 2,20 Eur/m2/mesiac
- 699m2 - sklad s dvojkrídlovou bránou, cena 4,00Eur/m2/mesiac
- 144m2 - skladový priestor s malou kanceláriou a sociálnymi priestormi, cena 4,00Eur/m2/mesiac
K cenám budú pripočítané merateľné energie + DPH.
Ponúkame kancelárie a sklady na prenájom nie len v Pezinku, ale aj v Bratislave, Senci a okolí.
Ponúkame tiež nové zdieľané kancelárske priestory v centre Pezinka. K dispozícii na prenájom sú pracovné miesta, moderná zasadačka s LED obrazovkou, projektorom, úložný priestor, print-copy-scan centrum, kuchynka a sociálne zázemie. Priestory sú prístupné od 8h do 20h.
Cena za pracovné miesto (kancelársky stôl so stoličkou): od 85,- Eur/mesiac + DPH.
V prípade záujmu napíšte nám prosím mail, zašleme Vám ponuku.
Využite služby spoľahlivej realitnej kancelárie, ktorá je na trhu už viac ako 17 rokov!
Ponúkame aj ďalšie služby súvisiace s nehnuteľnosťami: inžiniering, vybavovanie staveb. povolení, homestaging inetriérové poradenstvo, služby architekta, služby znalca, hypotekárneho poradcu a právnika. Využite komplexné služby v oblasti realít!
Bližšie informácie nájdete aj na našej web stránke. www.kluc.sk, kluc@kluc.sk ,
RK Kľúč, tel.: 0907 507 507
Mapa lokality s ponúkanou nehnuteľnosťou (vyznačená poloha môže byť orientačná)
(všetky top reality) TOP reality
Reality podľa typu
-
6565 Na predaj
-
3407 Na prenájom
Reality podľa kategórie
-
4804 Byty
-
2434 Domy
-
1807 Pozemky
-
1197 Nebytové priestory
-
605 Komerčné objekty










