BYT Č.403, RUDLOVSKÁ RESIDENCE
Rudlovská cesta, Banská Bystrica, okres Banská Bystrica, Banskobystrický kraj [SK]
neuvedené
75.69 m² ( )
Aktualizácia: 13.6.2022 10:31 Základné informácie
- ID: BYT1152767
- Typ: Predaj
- Druh: 3 izbový byt
- Cena: neuvedené
- Cena/m²:
- Plocha: 75.69 m²
- Zastavané: neuvedené
- Pozemok: neuvedené
- Stav: neuvedené
Lokalita
- Ulica: Rudlovská cesta
- Obec /mesto/: Banská Bystrica
- Okres: okres Banská Bystrica
- Kraj: Banskobystrický kraj
- Štát: Slovensko
Text inzerátu
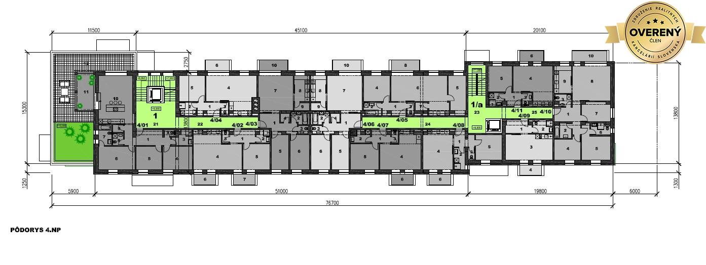
2-izbový byt na 4. poschodí ktorý pozostáva zo vstupnej chodby, kuchyne, dvoch izieb, kúpeľne, WC a balkóna.
Byt bude dokončený v štandarde vrátane zariaďovacích predmetov v kúpeľni a vo WC. Dvere budú drevené s drevenými obložkovými zárubňami, podlahy budú vyhotovené ako plávajúce laminátové a z keramickej dlažby.
Mapa lokality s ponúkanou nehnuteľnosťou (vyznačená poloha môže byť orientačná)
Kontakt na inzerenta Všetky naše inzeráty
MAXISS, spol.s.r.o.
Realitná kancelária
Jazmínova 1, 97404 Banská Bystrica
0905613160
maxiss@maxiss.sk
Realitná kancelária
Jazmínova 1, 97404 Banská Bystrica
0905613160
maxiss@maxiss.sk
(všetky top reality) TOP reality
Reality podľa typu
-
6565 Na predaj
-
3404 Na prenájom
Reality podľa kategórie
-
4801 Byty
-
2434 Domy
-
1806 Pozemky
-
1197 Nebytové priestory
-
606 Komerčné objekty



