BYT Č.301, RUDLOVSKÁ RESIDENCE
Rudlovská cesta, Banská Bystrica, okres Banská Bystrica, Banskobystrický kraj [SK]
neuvedené
97.81 m² ( )
Aktualizácia: 20.4.2022 14:36 Základné informácie
- ID: BYT1152748
- Typ: Predaj
- Druh: 4 izbový byt
- Cena: neuvedené
- Cena/m²:
- Plocha: 97.81 m²
- Zastavané: neuvedené
- Pozemok: neuvedené
- Stav: neuvedené
Lokalita
- Ulica: Rudlovská cesta
- Obec /mesto/: Banská Bystrica
- Okres: okres Banská Bystrica
- Kraj: Banskobystrický kraj
- Štát: Slovensko
Text inzerátu
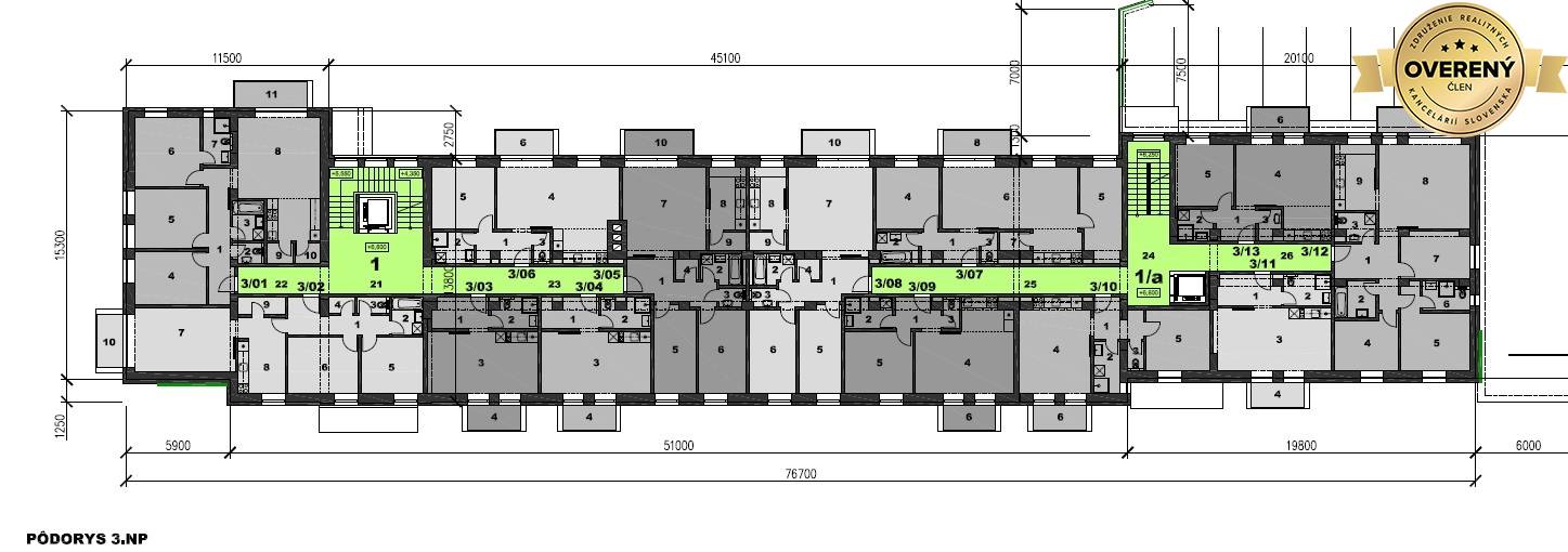
4-izbový byt na 3. poschodí ktorý pozostáva zo vstupnej chodby, kuchyne, 4-och izieb, kúpeľne, WC a balkóna. Byt bude dokončený v štandarde vrátane zariaďovacích predmetov v kúpeľni a vo WC. Dvere budú drevené s drevenými obložkovými zárubňami, podlahy budú vyhotovené ako plávajúce laminátové a z keramickej dlažby.
Mapa lokality s ponúkanou nehnuteľnosťou (vyznačená poloha môže byť orientačná)
Kontakt na inzerenta Všetky naše inzeráty
MAXISS, spol.s.r.o.
Realitná kancelária
Jazmínova 1, 97404 Banská Bystrica
0905613160
maxiss@maxiss.sk
Realitná kancelária
Jazmínova 1, 97404 Banská Bystrica
0905613160
maxiss@maxiss.sk
(všetky top reality) TOP reality
Reality podľa typu
-
6564 Na predaj
-
3398 Na prenájom
Reality podľa kategórie
-
4798 Byty
-
2432 Domy
-
1807 Pozemky
-
1194 Nebytové priestory
-
606 Komerčné objekty



