APARTMÁN Č.105, RUDLOVSKÁ REZIDENCE
Rudlovská cesta, Banská Bystrica, okres Banská Bystrica, Banskobystrický kraj [SK]
neuvedené
32.91 m² ( )
Aktualizácia: 19.4.2022 11:34 Základné informácie
- ID: BYT1152535
- Typ: Predaj
- Druh: 1 izbový byt
- Cena: neuvedené
- Cena/m²:
- Plocha: 32.91 m²
- Zastavané: neuvedené
- Pozemok: neuvedené
- Stav: neuvedené
Lokalita
- Ulica: Rudlovská cesta
- Obec /mesto/: Banská Bystrica
- Okres: okres Banská Bystrica
- Kraj: Banskobystrický kraj
- Štát: Slovensko
Text inzerátu
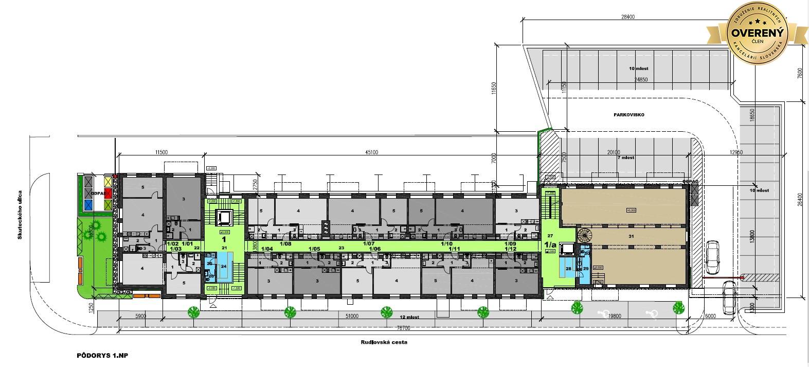
1-izbový apartmán na 1. poschodí ktorý pozostáva zo vstupnej chodby, kuchyne, iziby a kúpeľne s WC. V kúpeľni bude umývadlo s pákovou vodovodnou batériou, sprchovací kút a WC typ Geberit. Dvere budú drevené s drevenými obložkovými zárubňami, podlahy budú vyhotovené ako plávajúce laminátové a z keramickej dlažby.
Mapa lokality s ponúkanou nehnuteľnosťou (vyznačená poloha môže byť orientačná)
Kontakt na inzerenta Všetky naše inzeráty
MAXISS, spol.s.r.o.
Realitná kancelária
Jazmínova 1, 97404 Banská Bystrica
0905613160
maxiss@maxiss.sk
Realitná kancelária
Jazmínova 1, 97404 Banská Bystrica
0905613160
maxiss@maxiss.sk
(všetky top reality) TOP reality
Reality podľa typu
-
6566 Na predaj
-
3404 Na prenájom
Reality podľa kategórie
-
4801 Byty
-
2434 Domy
-
1807 Pozemky
-
1197 Nebytové priestory
-
606 Komerčné objekty



