2. IZBOVÝ BYT VO VYSOKÝCH TATRACH S PRIAMÍM VÝHĽADOM NA LOMNICKY ŠTÍT
Tatranská 610, Veľká Lomnica, okres Kežmarok, Prešovský kraj [SK]
159 000 €
57.00 m² (2 789.47 €/m²)
Aktualizácia: 26.8.2023 12:56 Základné informácie
- ID: BYT1215310
- Typ: Predaj
- Druh: 2 izbový byt
- Cena: 159 000 €
- Cena/m²: 2 789.47 €/m²
- Plocha: 57.00 m²
- Zastavané: neuvedené
- Pozemok: neuvedené
- Stav: Novostavba
Lokalita
- Ulica: Tatranská 610
- Obec /mesto/: Veľká Lomnica
- Okres: okres Kežmarok
- Kraj: Prešovský kraj
- Štát: Slovensko
Text inzerátu
2. izbový, plne zariadený, byt o výmere 57 m2 sa nachádza v rezorte APARTMÁNY LOMNICA, ktorá pozostáva z dvoch budov. Nehnuteľnosť je na LV evidovaná ako byt. Byt sa veľmi úspešne prenajíma na pobyty.
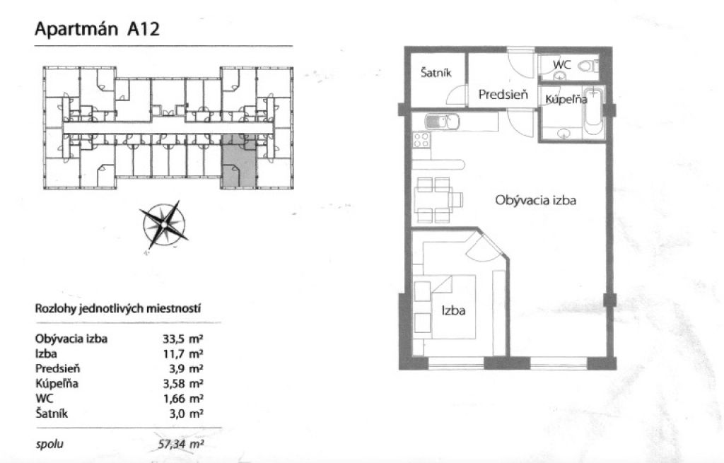
Byt sa nachádza na prízemí v budove č. 1, v ktorej je umiestnená aj recepcia slúžiaca obidvom budovám. Budova ponúka informačné služby (Recepcia), WiFi pripojenie, TV káblové služby. Byt je možne použiť na stály pobyt, ako aj rekreačný byt, alebo ako investičný, kde je možnosť uzatvorenia zmluvy so spoločnosťou, ktorá Vám zabezpečí všetky služby spojené s ubytovaním, pričom má majiteľ možnosť využívať relax a pohodlie aj pre svoje potreby. Je veľmi dobre dispozične riešený, a má nadštandardné, nové kompletné zariadenie. Zo vstupnej chodby sa vstupuje do obývacej izby, veľkého samostatného šatníka/skladovacej miestnosti so zámkom, samostatného WC, a kúpelne so sprchovým kútom. Obývacia izba/jedálenský kút/kuchyňa sú otvorené v tvare “L.” Byt má samostatnú spálňu. Ponad malé jazierko, ktoré sa rozprestiera hneď za oknami bytu, a medzinárodného golfového ihriska Black Stork je z celého bytu priamy úchvatný pohľad na Tatranské štíty. Kuchyňa je vybavená spotrebičmi: chladnička, umývačka riadu, mikrovlna, kanvica a ostatné zariadenie. Kuchyňa je plne zariadená na varenie aj pre dlhodobé ubytovanie. V byte je tiež samostatná práčka. Voda a samotné vykurovanie apartmánov je zabezpečené prostredníctvom geotermálnej energie, ktorá sa odčerpáva z neďalekého vrtu. Na 21000 m2 pozemku bytových domov Apartmány Lomnica je k dispozícii vlastné wellness, altánky na grilovanie, detské ihrisko, tenisový kurt. Na pozemku bytových domov je priestranné bezplatne parkovisko. Správa apartmánového domu ponúka niekoľko možností sprostredkovania služieb, ktoré zahrňujú recepciu, upratovacie, čistiace a údržbárske práce, ale aj zabezpečovanie športových aktivít vrátane prenájmu vybavenia.
Apartmány Lomnica**** sa nachádzajú na okraji Veľkej Lomnice na priamom ťahu na Tatranskú Lomnicu.
Rezort je dostupný blízko z diaľnice z Popradu 8km, pričom v Poprade sa nachádza letisko Poprad -Tatry.
Tatranská Lomnica ( 8km ) - turistické trasy, lyžiarske stredisko, Lomnický štít, Poprad Aqua City ( 9km), Starý Smokovec - Hrebienok (12km) - historická oblasť Vysokých Tatier, turistické trasy, chaty vodopády, Slavkovský štít, Slovenský raj (25km ), Bachledova dolina (25km) - turistické trasy, lyžiarske stredisko, Spišský hrad (30km), Štrbské pleso (35km) - turistické trasy, lyžiarske stredisko, golfové ihrisko Black Stork Golf Resort (2km), THERMAL PARK VRBOV ( 9km)
Náklady na bývanie 154,50 - € + elektrina, ktorá okrem iného zahŕňa aj WiFi, káblovú TV, fond oprav …
Cena bytu 159.000, - € v nej je zahrnutý kompletný právny a administratívny servis, poplatok pri podaní návrhu na vklad vlastníckeho práva a poplatky spojené s úradným overením podpisov na zmluvách.
Táto ponuka platí pri priamom predaji, bez RK.
Mapa lokality s ponúkanou nehnuteľnosťou (vyznačená poloha môže byť orientačná)
(všetky top reality) TOP reality
Reality podľa typu
-
6566 Na predaj
-
3405 Na prenájom
Reality podľa kategórie
-
4803 Byty
-
2434 Domy
-
1806 Pozemky
-
1197 Nebytové priestory
-
606 Komerčné objekty













