2-IZBOVÝ BYT S TERASOU V NOVOSTAVBE, PRIEKOPNÍCKA UL., UŽ STAVIAME
Priekopnícka, Bratislava-Podunajské Biskupice, okres Bratislava II, Bratislavský kraj [SK]
225 264 €
39.00 m² (5 776.00 €/m²)
Aktualizácia: 27.10.2022 10:16 Základné informácie
- ID: BYT1186467
- Typ: Predaj
- Druh: 2 izbový byt
- Cena: 225 264 €
- Cena/m²: 5 776.00 €/m²
- Plocha: 39.00 m²
- Zastavané: neuvedené
- Pozemok: neuvedené
- Stav: Projekt vo výstavbe
Lokalita
- Ulica: Priekopnícka
- Obec /mesto/: Bratislava-Podunajské Biskupice
- Okres: okres Bratislava II
- Kraj: Bratislavský kraj
- Štát: Slovensko
Text inzerátu
Ponúkame na predaj moderný svetlý 2-izbový byt s terasou v pripravovanej novostavbe na Priekopníckej ulici v MČ Podunajské Biskupice.
Zahájenie výstavby: 19.10.2022
Dokončenie: IV. Q 2023
O projekte
Projekt ponúka príjemné bývanie v 2-izbových bytoch v malom bytovom dome iba s 10-timi bytmi, čo ponúka pocit súkromia a pohody. Parkovacie státia sú priamo pred bytovým domom, každé s prípravou na nabíjanie elektrických vozidiel.
Bytový dom je 3-podlažný, pavlačového typu, pričom na 1.NP sú 4 byty s predzáhradkou, na 2.NP sú 4 byty a na 3. ustúpenom NP sú 2 byty s terasou.
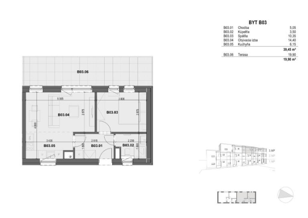
Byt B 03 - 3NP
Výmera bytu: 39,45 m2
Terasa: 19,90 m2
Konštrukcia:
Obvodové murivo z keramických tvárnic
Zateplenie
Vnútorné nosné murivo z keramických tvárnic
Vnútorné deliace priečky z pórobetónových tvaroviek
Strecha plochá
Vybavenie:
Štandardy zahrnuté v cene bytu - obklady, dlažby, dvere, laminátové podlahy, kľučky, sanita
Okná – plastové zasklené izolačným trojsklom, znížený vnútorný parapet
Výhody projektu:
Energetická trieda A0
Nízke mesačné náklady - neplatia sa poplatky za spoločné priestory
Vykurovanie každého bytu vlastným plynovým kotlom - podlahové kúrenie
Rekuperácia v každej obytnej miestnosti
Lokalita
Tichá, príjemná, s výbornou dostupnosťou do centra mesta a plnohodnotnou občianskou vybavenosťou. Vzhľadom na svoju polohu v blízkosti Malého Dunaja ponúka projekt kvalitné aktívne trávenie voľného času – športové aktivity, cyklistika, beh, splav Dunaja či rybárčenie, alebo prechádzky s domácimi miláčikmi.
Doprava
Neďaleké napojenie Priekopníckej ulice na ul. Popradskú umožňuje dopravné spojenie automobilovou dopravou cez diaľničný obchvat do všetkých častí Bratislavy a von z mesta. Najbližšia zástavka MHD „Priekopnícka“, sa nachádza vo vzdialenosti približne 4 minúty pešo. Na autobusovú stanicu Mlynské Nivy trvá cesta autom len 10 min. Vjazd k bytovému domu je z ulice Priekopnícka.
Cena: 225 264 € s DPH
Možnosť dokúpenia parkovacieho státia za 10 000 € s DPH (nepovinné).
Nadštandardný servis RK a bezplatný finančný servis našim klientom sú samozrejmosťou.
Ponuky ostatných bytov nájdete na stránke RK :
www.evingreal.sk
http://www.evingreal.sk/2-izb-byt-s-predzahradkou-v-pripravovanej-novostavbe-priekopnicka-699877
http://www.evingreal.sk/moderny-svetly-2-izb-byt-v-pripravovanej-novostavbe-priekopnicka-699890
Mapa lokality s ponúkanou nehnuteľnosťou (vyznačená poloha môže byť orientačná)
(všetky top reality) TOP reality
Reality podľa typu
-
6563 Na predaj
-
3407 Na prenájom
Reality podľa kategórie
-
4804 Byty
-
2434 Domy
-
1807 Pozemky
-
1195 Nebytové priestory
-
605 Komerčné objekty




